To use the site www.limba.com in standard view, you have to enable JavaScript. It seems that JavaScript is disabled or not supported by your browser. To use standard view, enable JavaScript by changing your browser settings then try again.
Cookies help us deliver and optimize our services. By continuing to use our services, you agree to our cookie policy.
Больше информации
OK
Посмотрите также:
Отпуск в Хорватии
Отпуск в Чехии
Отпуск в Литве
Отпуск в Греции
Отпуск в Латвии
Отпуск в Словении
Отпуск в Германии
Отпуск в Испании
Отпуск в России
Отпуск в Эстонии
Отпуск в Польше
Отпуск на Украине
Отпуск Албания
Отпуск в Венгрии
Отпуск в Сербии
Пошли линк:
Отпуск в Словакии
>
Апартаменты в Словакии
>
Апартаменты Турьец / Turiec
>
Мартин / Martin-район Martin
>
Семейный пансионат 3168
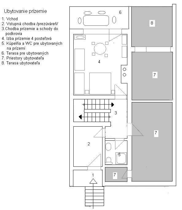
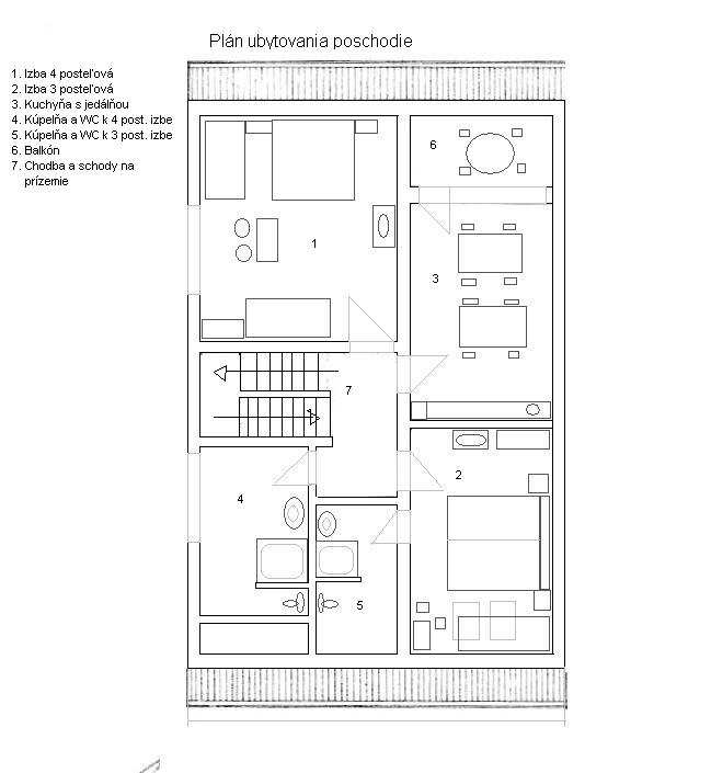
, Горизонтальная проекция
Отпуск в Словакии
Апартаменты в Словакии
Апартаменты Турьец / Turiec
Мартин / Martin-район Martin
Семейный пансионат 3168
Отпуск
Валюта:
RUB
Язык:
Русский язык
Поиск
Мой выбор
Информация
Поиск
Мой выбор
Послать Мой выбор друзьям:
Отпуск Мартин / Martin
Турьец / Turiec
Семейный пансионат
3168
Объект детально
Фотографии
Ориентировочная занятость
Горизонтальная проекция
Гостевая книга
Карта
Окрестности
Версия для печати
Мой выбор