To use the site www.limba.com in standard view, you have to enable JavaScript. It seems that JavaScript is disabled or not supported by your browser. To use standard view, enable JavaScript by changing your browser settings then try again.
Cookies help us deliver and optimize our services. By continuing to use our services, you agree to our cookie policy.
További információk
OK
Lásd még:
Szállás Hollandiában
Szállás Litvániában
Szállás Ausztriában
Szállás Horvátországban
Szállás Magyarországon
Szállás Macedóniában
Szállás Szlovéniában
Szállás Ukrajnában
Szállás Romániában
Szállás Svájcban
Szállás Olaszországban
Szállás Bulgáriában
Szállás Görögországban
Szállás Albániában
Szállás Szerbiában
Link elküldése:
Szállás Szlovákiában
>
Apartmanok Szlovákiában
>
Apartmanok Turóc / Turiec
>
Turócszentmárton / Martin-járás Martin
>
Fizetővendéglátó-hely 3168
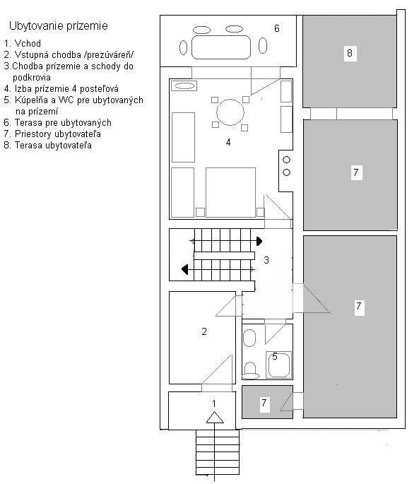
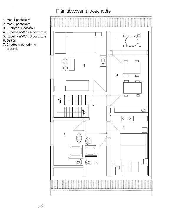
, Alaprajz
Szállás Szlovákiában
Apartmanok Szlovákiában
Apartmanok Turóc / Turiec
Turócszentmárton / Martin-járás Martin
Fizetővendéglátó-hely 3168
Szállás
Pénznem:
HUF
Nyelv:
Magyarul
Keresés
Választásom
Információk
Keresd!
Választásom
Küldd el a Választásomat barátaimnak:
Szállás Turócszentmárton / Martin
Turóc / Turiec
Fizetővendéglátó-hely
3168
Szálláshely részletesen
Fényképek
Hozzávetőleges foglaltság
Alaprajz
Vendégkönyv
Térkép
Környék
Nyomtatásra alkalmas verzió
Választásom
Síelés Ausztriában - válasszon a legjobb szállásokból!
Vendégházak márciusban 11%-os árengedménnyel!
Idén is a tengerhez! De hová?
Liptói nyár 12%-os árengedménnyel!
Élvezze a legközelebbi Adriát!
Ősz Ausztriában 8%-os árengedménnyel!
A legjobb szállás - Szlovákia - rendkívüli, 14%-os árengedménnyel!